Plan & Options


From Post #2....


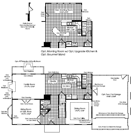
There were a few major choices we made right off the bat.

  1. A 3 car side entry garage was an almost necessity.  The HOA rules don't allow a rear shed if you live on a corner lot, so the extra storage space will be needed.
  2. Finished basement with Media/Theater room :-)
  3. Morning Room (aka Breakfast Room) with a 14x12 deck.
  4. Gourmet Kitchen with the big island, 42" cabinets, granite, and a gas range.
  5. 9' Celings on the 1st Floor and a gas fireplace in the Family Room.
  6. and finally the Upgraded Owners suite.  Really this was just to get the nice bathroom.
All said and done it will be 4 bedrooms, 2 Baths upstairs.  1/2 Bath on the 1st floor, and a rough in for a full bath in the basement.


Upstairs
1st Floor.